產品導航
Product navigation
當前位置:首頁 > 提升機圖紙 > 各型號斗式提升機結構圖匯總
各型號斗式提升機結構圖匯總
發布人:新鄉天太斗式提升機廠家 發布時間:2019-09-12
新鄉天太振動機械制造有限公司作為專業的斗式提升機廠家免費為用戶提供各型號斗式提升機結構圖:點擊查看詳細提升機圖紙:
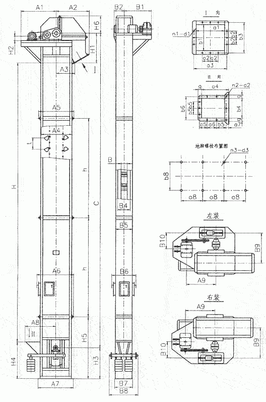
一:TD皮帶斗式提升機結構圖

斗提機型號 | TD100 | TD160 | TD250 | TD315 | TD400 | TD500 | |
輪廓高度L | C+1100 | C+1363 | C+1535 | C+1640 | C+1790 | C+1865 | |
整機結構 | H | C-820 | C-930 | C-1250 | C-1245 | C-1500 | C-1700 |
料斗 | t | 200 | 350/280 | 450/360 | 500/400 | 560/480 | 625/500 |
地腳孔 | a3 | 200 | 250 | 300 | 300 | 400 | 400 |
上、下部機殼及外形輪廓 | H3 | 970 | 1185 | 1320 | 1488 | 1500 | 1655 |
中部機殼 | A4 | 776 | 982 | 1152 | 1254 | 1548 | 1570 |
卸料口 | H1 | 520 | 630 | 750 | 795 | 850 | 1000 |
二:TH環鏈斗式提升機結構圖

提升機型號 | 整機結構尺寸 | 地腳孔尺寸 | 上部機殼尺寸 | 下部機殼尺寸 | 中部機殼尺寸 | |||||||||||||
L | H | H3 | S | ag | bg | n3×d3 | H1 | A2 | B2 | H5 | A7 | A8 | B5 | A4 | A5 | B3 | B4 | |
TH160 | C+1300 | C-750 | 750 | 200 | 400 | 320 | 6×Φ18 | 900 | 1000 | 295 | 1500 | 1131 | 1330 | 497 | 1000 | 1105 | 280 | 385 |
三:NE環鏈斗式提升機結構圖

NE斗式提升機型號 | NE15 | NE30 | NE50 | NE100 | NE150 | NE200 | |
機殼形式 | I | I | I | I | I | II | |
上機殼 | H1 | 523 | 840 | 665 | 741 | 766 | 968 |
H2 | 1342 | 2265 | 1880 | 2000 | 1700 | 1780 | |
卸料口 | D1 | 900 | 955 | 1100 | 1475 | 1300 | 1650 |
D2 | 800 | 1000 | 1000 | 1200 | 1200 | 1500 | |
D3 | 250 | 300 | 350 | 350 | 400 | 550 | |
D4 | 300 | 350 | 400 | 500 | 650 | 650 | |
d1 | 306/3 | 356/3 | 406/3 | 406/3 | 456/3 | 606/4 | |
d2 | 356/3 | 406/3 | 456/3 | 556/4 | 706/5 | 706/5 | |
平臺 | p1 | 1000 | 602 | 777 | 803 | 1200 | 1280 |
p2 | 104 | 104 | 104 | 130 | 130 | 144 | |
p3 | 1404 | 2403 | 1827 | 1740 | 1740 | 1864 | |
p4 | 521 | 620 | 616 | 729 | 720 | 870 | |
p5 | 1579 | 2041 | 2236 | 2380 | 23800 | 2730 | |
p6 | 2300 | 2500 | 2500 | 2600 | 3300 | 4100 | |
中間機殼 | M1 | 1050 | 1240 | 1240 | 1450 | 1450 | 1750 |
M2 | 1156 | 1340 | 1348 | 1598 | 1582 | 1888 | |
M3 | 450 | 500 | 650 | 800 | 1060 | 1120 | |
M4 | 556 | 600 | 780 | 948 | 1196 | 1280 | |
M5 | 1250 | 1440 | 1440 | 1680 | 1680 | 1980 | |
M6 | 650 | 700 | 850 | 1030 | 1290 | 1350 | |
喂料口 | R1 | 800 | 970 | 970 | 1125 | 1075 | 1300 |
R2 | 250 | 300 | 280 | 400 | 500 | 550 | |
R3 | 250 | 300 | 300 | 400 | 600 | 560 | |
R4 | 1350 | 1650 | 1700 | 2000 | 2050 | 2400 | |
r1 | 306/3 | 356/3 | 336/3 | 456/3 | 556/4 | 620/4 | |
r2 | 306/3 | 356/3 | 356/3 | 456/3 | 656/5 | 630/4 | |
下機殼 | B1 | 600 | 750 | 750 | 850 | 900 | 1050 |
B2 | 2440 | 2440 | 2500 | 2500 | 2500 | 3000 | |
B3 | 830 | 970 | 996 | 1148 | 1632 | 2102 | |
基礎尺寸 | Z1 | 1000 | 1200 | 1200 | 1400 | 1400 | 1670 |
Z2 | 1400 | 1500 | 1500 | 1700 | 1700 | 1850 | |
Z3 | 950 | 1000 | 1100 | 1200 | 1350 | 1350 | |
Z4 | 1300 | 1400 | 1700 | 1900 | 2350 | 2350 | |
Z5 | 554 | 594 | 744 | 916 | 1176 | 1250 | |
Z6 | 400/1 | 450/1 | 550/1 | 600/1 | 400/1 | 800/1 | |
Z7 | 1144 | 1334 | 1334 | 1566 | 1566 | 1880 | |
Z8 | 500/1 | 600/1 | 600/1 | 700/1 | 700/1 | 940/2 | |
如果您有其他的特殊斗式提升機結構圖的需要,可以聯系天太斗式提升機廠家:0373-6396888
版權說明:如非注明,本站文章均為新鄉天太斗式提升機廠家原創,轉載請注明出處和附帶各型號斗式提升機結構圖匯總本文鏈接。
上一篇:斗式提升機料斗安裝結構的制作方法
下一篇:NE15斗式提升機外形尺寸總裝圖

